UH Sugar Land - College of Technology

PROJECT OVERVIEW

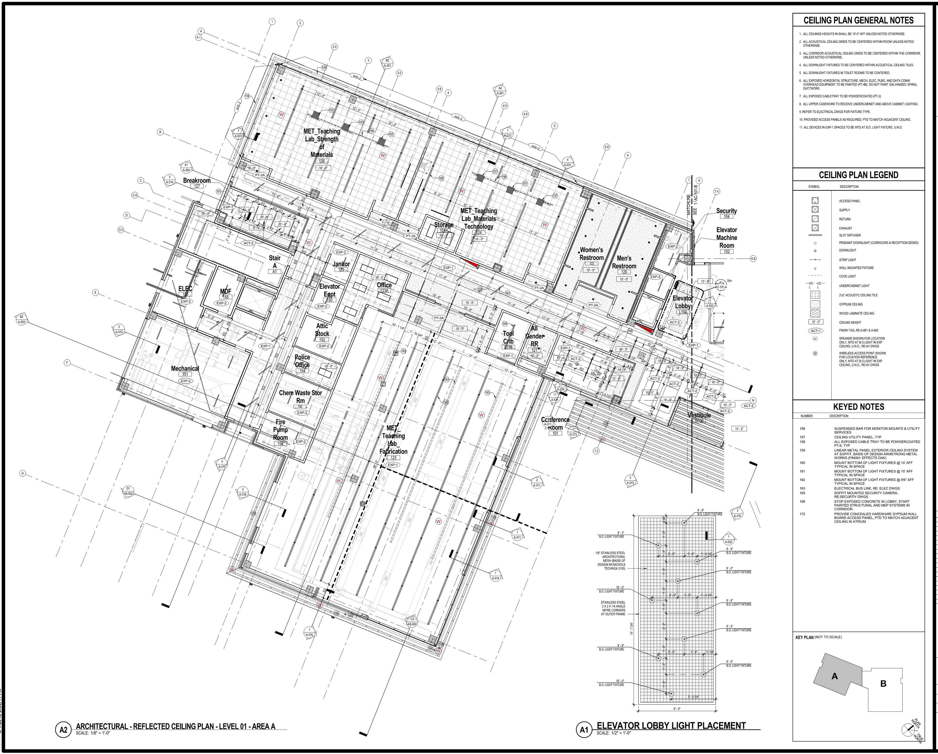
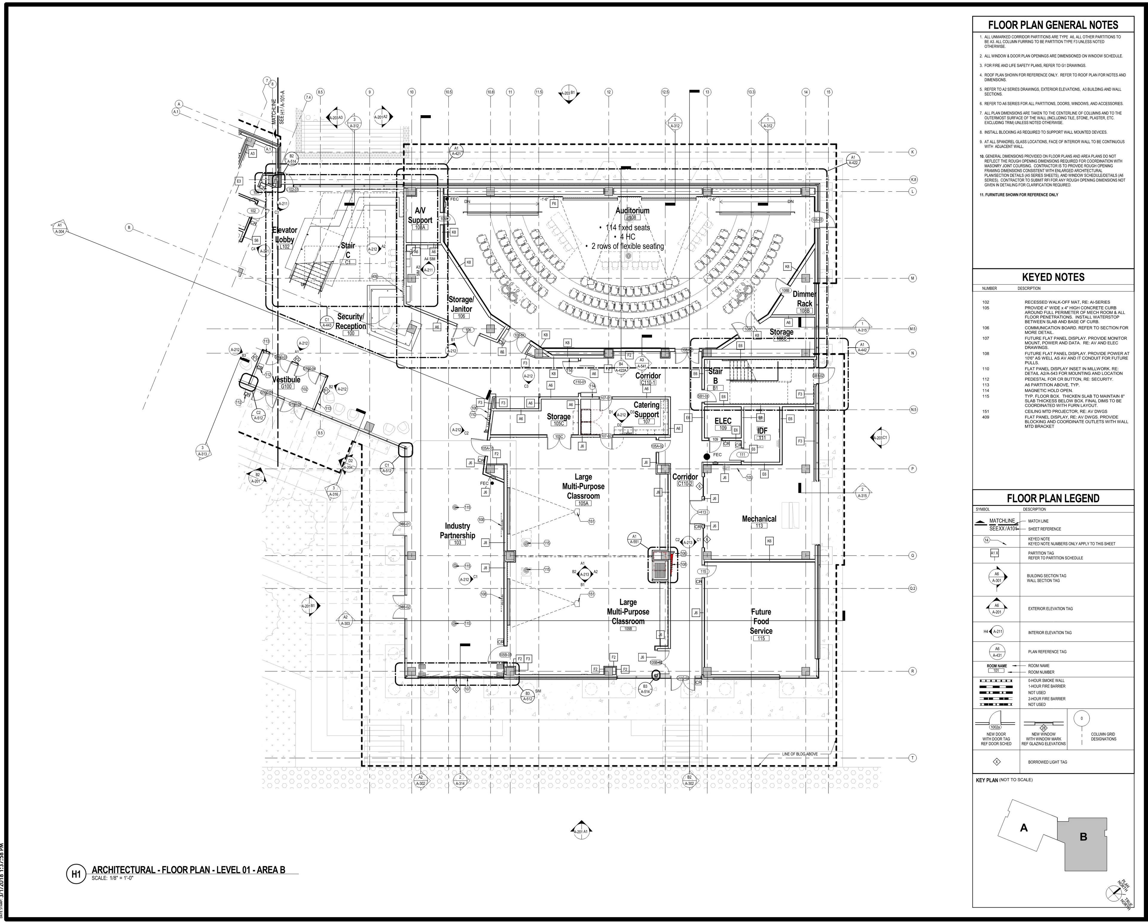
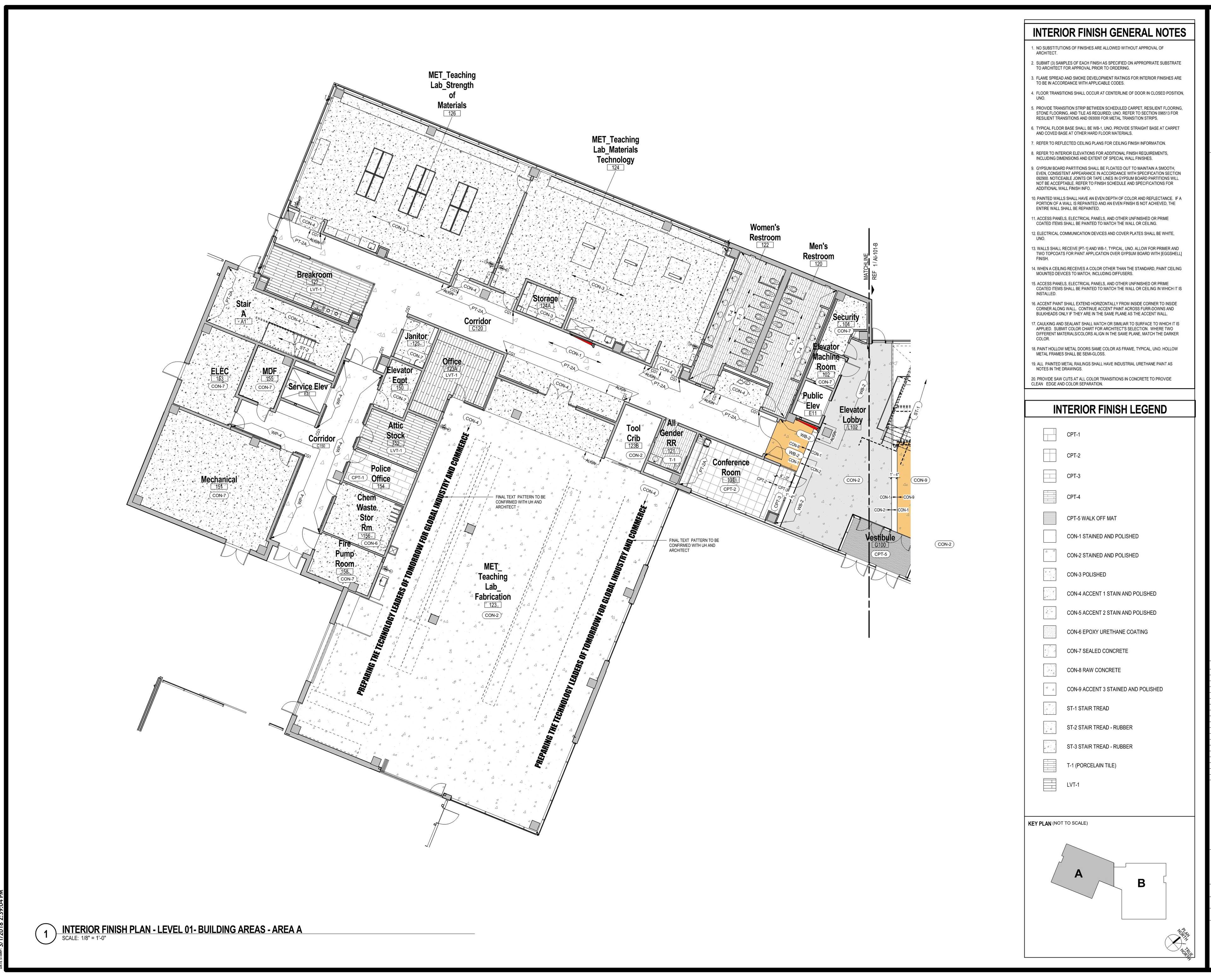
This three-story facility establishes a strong academic identity for UH’s Sugar Land campus. Transparent labs for fabrication, prototyping, materials, and 3D printing are paired with flexible classrooms, faculty offices, and student commons to encourage visibility and collaboration.

Serving programs in construction management, engineering technology, logistics, and digital media, the building creates adaptable environments that anticipate future technologies while advancing UH’s Tier One mission in a rapidly growing region.

Area of site

108,690 ft2

Date

2019

Location

Sugar Land, TX

Tools used

Revit, Enscape, MS Suite, Indesign

PROJECT DRAWINGS

A-101-A
A-101-B
AI-101-A
AI-101-B
AC-101-A
AC-101-B
Enlarge Auditorium Plan
Enlarged Auditorium RCP
Enlarged Custom Millwork

3D REFERENCE VIEWS

NOTABLE DETAILS

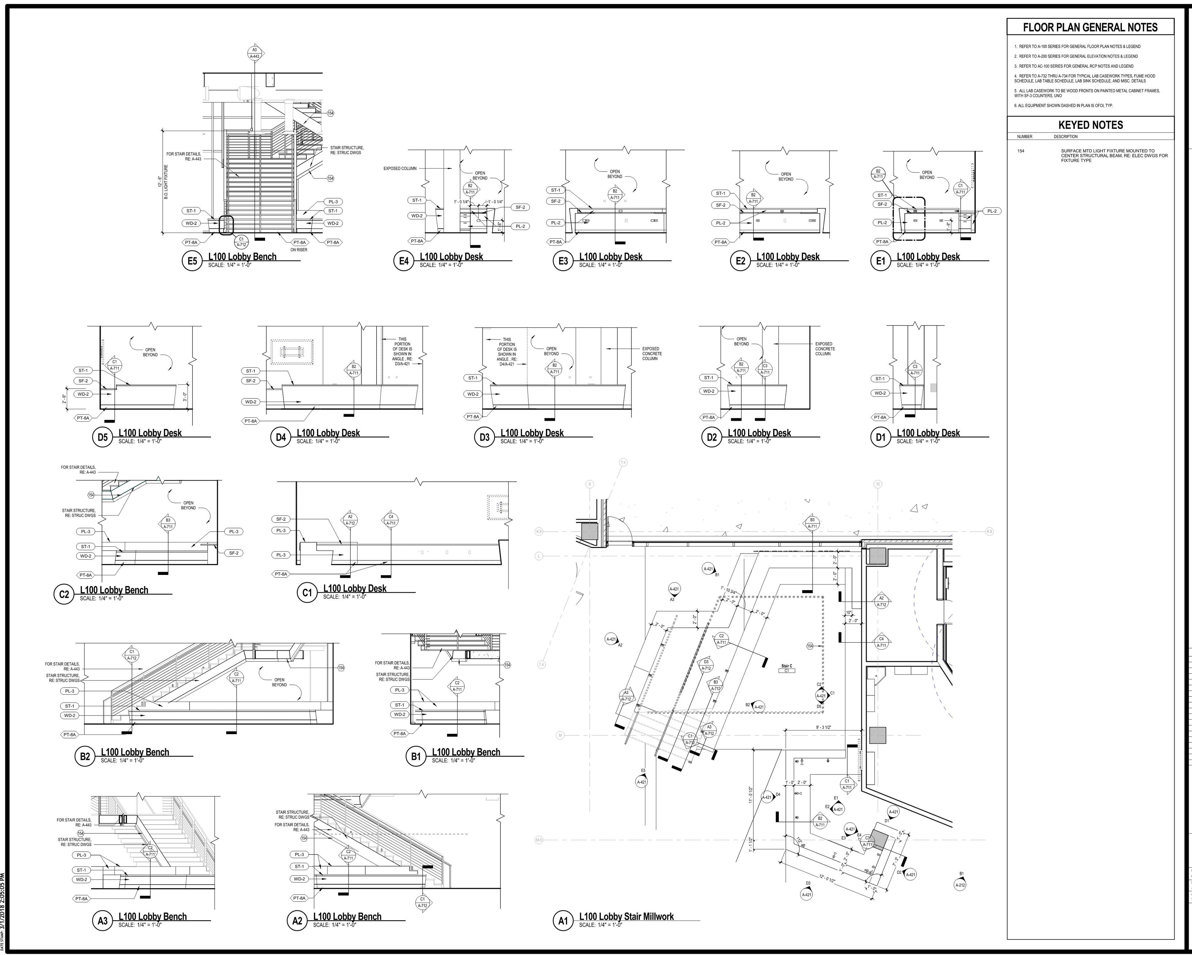
FLOATING STAIR

The exposed stair integrates a linear light along its underside, a detail that both clarifies its structure and emphasizes its sculptural form

ENGINEERING COORDINATION

With exposed ceilings and hard finishes, every device, light, pipe, and duct required precise coordination. Color-coded MEP systems at service rooms transformed infrastructure into a visual learning tool, while labs such as the fabrication space called for flexible utilities and technical solutions exceeding those of standard classrooms

ACOUSTICAL TREATMENTS

The design embraced hard, industrial surfaces as an intentional architectural expression. To balance this aesthetic with comfort, acoustical performance was enhanced through the careful integration of high-performance panels on vertical and horizontal planes